实验室系统整体解决专家

15年专注实验室规划、设计、生产、装修施工管理一体化

全国咨询热线:

020-82312289

13580551228

实验室净化系统工程

控制交叉感染,空调通风系统的设计,必须尽可能地使空气从高清洁区流向一般清洁区在流向非清洁区,这是众所周知的原则。但是如何稳定的维持不同区域的空气压差,确保上述原则,并不是件容易的事,要对设计、建造、调试、维护和监测多个环节认真处理才有可能达到此目的。当然维持各区域空气压差所才用的基本方法,无一例外都是靠送风、回风、排风和渗漏风等所维持某种状态的动态平衡。设计与建造之所以重要,因为从保证各区域合理的空气压力分布的角度,建筑构造形式,空调方式及调节与控制方法的选取十分关键。可靠和灵便的风量调节装置及自动控制系统,是压差与气流流向的重要保障,因为新风、送风、回风、排风通路上都存在某些变数,影响系统各部分的风量。一个设计完整的空调系统起初调节与监测等环节,是其功能充分发挥的基本保证。


实验室净化系统工程

洁净系统

千级洁净室人流走向:一更 →二更→清洁走廊→千级洁净室

百级洁净室人流走向:一更 →二更→清洁走廊→风淋→缓冲→百级洁净室

物品走向:所有物品通过传递窗进出

洁净室回风系统

空气处理流程:室外新风 →初效过滤→机房→空调初效过滤段→空调处理段→风机段→中效过滤→送风管道→高效过滤→实验室→回风口→回风管道→空调回风段.


实验室智能化通风系统工程

实验室智能化通风系统工程

通风及控制系统


安全通风目的:


1、安全高效的通风效果;

2、控制系统噪声;

3、控制灵活,节约能耗;

4、维持室内的微负压动态平衡;

5、实验室废气分类处理;

6、实现智能化控制。


变频控制方式

控制方法:系统按所有需求风量设计;在通风柜上安装变风量阀,于调节门移动过程中保持通风柜的面风速为常量,控制阀门的开度,采用定管道静压闭环控制变频器输出频率,控制风机运行的转速,以满足通风柜设定面风速所需风量,达到通风柜面风速恒定的控制效果


通风控制系统性能对比

变风量控制方式(VAV)优势

·安全性较高:1、调节门位置变化时保持正确的面风速,安全性增加。

2、安装面风速监测装置及变风量阀,恒定保持正确的面风速;同时对面风速进行监测、高低报警;实时监测使用设备的安全性,增加使用者的安全性。

·节能性:调节门位置决定风量,设定的面风速决定风量。

·报警与监控功能是变风量系统的一个典型的组成部分,增加安全性。

·由于变风量控制系统易于适应系统变化,实验室灵活性会增加。

·由于风流量减小,噪音会降低。


实验室环保工程

实验室环保工程

实验过程中产生的废气、废液、废渣大多数是有害的,必须经过处理才能排放。



  一、实验室废气


       实验室在检验、鉴定、测试的过程中,由于实验的需要会产生各种废气,废气成分相对复杂,包括芳香族类:苯、甲苯、二甲苯、苯乙烯等;酮类:丙酮、环已酮、甲乙酮等;酯类:醋酸乙酯、醋酸丁酯、异酸甲酯、香蕉水等;醇类:甲醇、乙醇、丁醇、异丙醇等有机废气。也包括氮氧化物、硫酸雾、氯化氢、氟化氢、硫化氢、二氧化硫等无机废气;同时也有高温的燃烧废气、粉尘等。在实验过程中产生的废气往往成分具有复杂性、多样性,针对该特点,对人体健康的损害程度也各不相同。



二、实验室废液废气处理办法


1、溶解法:在水或其它溶剂中溶解度特别大或比较小的气体,用合适的溶剂把它们完全或大部分溶解掉。

2、燃烧法:部分有害的可燃性气体,在排放口点火燃烧,消除污染。例如,一氧化碳等。化学实验中废弃的有机溶剂,大部分可回收利用,少部分可以燃烧处理掉,有些在燃烧时可能产生有害气体的废物,必须用配有洗涤有害废气的装置燃烧。

3、中和法:对于酸性或碱性较强的气体,用适当的碱或酸进行吸收。对于含酸或碱类物质的废液,如浓度较大时,可利用废酸或废碱相互中和,再用pH试纸检验,若废液的pH值在5.8~8.6之间,如此废液中不含其它有害物质,则可加水稀释至含盐浓度在5%以下排出。

4、吸附法:选用适当的吸附剂,消除一些有害气体的外逸和释放。对于毒害不大的气体或剂量小的气体,用木炭粉或脱脂棉。对于难以燃烧的或可燃性的低浓度有机废液,用吸附性能良好的物质,让废液充分吸收后,与吸附剂一起焚烧。

5、稀释法:对于实验中产生的大量废液,其中无毒无害的,采用稀释的方法处理。

6、沉淀法:对于含有害金属离子的无机类废液,加入合适的试剂,使金属离子转化为难溶性的沉淀物,然后进行过滤,将滤出的沉淀物妥善保存,检查滤液,确证其中不含有毒物质后,可排放。


PCR实验室
标题
更多
序号材料名称采购需求(技术参数、性能、配置等要求)
1彩钢板及转角双面夹心,总厚度不少于5cm,两边钢板厚度不少于0.4mm;夹心材料要求防火阻燃材料,符合国家相关标准。隔断材料与吊顶材料规格一致。面积见图
2地板采用进口厚度为2~3mm的地板胶,地板胶要求防酸、防碱、防腐蚀。面积见图
3天花板吸声板。面积见图
4实验台根据要求工作台面:符合仪器设备检测的需要设计多个实验台。台面为抗氧化腐蚀层压板,柜子抽屉符合要求。
5衣帽柜每个工作区配置1个
6照明LED照明,符合节能要求
7消毒每个区域备齐顶置紫外线灯管或1台移动紫外车
8传递窗机械连锁不锈钢,配置符合要求
9洗手池、下水管道各工作区配置洗手池,不锈钢304材料。且配置清洁池,洗手池旁应配置紧急洗眼器
10网络每区设立网络接口,及计算机局域接入口、电话线接口
11监控系统每个主实验间至少一个,实验区走道至少一个。影像在200万像素以上、夜视≥50米、彩色分辨率≥480线,并与本站现有监控系统免费联网。每个区域配置1个。
12空调每个区域配置1台吸顶冷暖空调,每台不少于2匹。任何时间段在20分钟内实验室温度必须达到20~25℃。
标题
更多
序号材料名称采购需求(技术参数、性能、配置等要求)
1彩钢板及转角双面夹心,总厚度不少于5cm,两边钢板厚度不少于0.4mm;夹心材料要求防火阻燃材料,符合国家相关标准。隔断材料与吊顶材料规格一致。面积见图
2地板采用进口厚度为2~3mm的地板胶,地板胶要求防酸、防碱、防腐蚀。面积见图
3天花板吸声板。面积见图
4实验台根据要求工作台面:符合仪器设备检测的需要设计多个实验台。台面为抗氧化腐蚀层压板,柜子抽屉符合要求。
5衣帽柜每个工作区配置1个
6照明LED照明,符合节能要求
7消毒每个区域备齐顶置紫外线灯管或1台移动紫外车
8传递窗机械连锁不锈钢,配置符合要求
9洗手池、下水管道各工作区配置洗手池,不锈钢304材料。且配置清洁池,洗手池旁应配置紧急洗眼器
10网络每区设立网络接口,及计算机局域接入口、电话线接口
11监控系统每个主实验间至少一个,实验区走道至少一个。影像在200万像素以上、夜视≥50米、彩色分辨率≥480线,并与本站现有监控系统免费联网。每个区域配置1个。
12空调每个区域配置1台吸顶冷暖空调,每台不少于2匹。任何时间段在20分钟内实验室温度必须达到20~25℃。

PCR实验室

PCR实验室又叫基因扩增实验室。PCR是聚合酶链式反应(Polymerase Chain Reaction)的简称。是一种分子生物学技术,用于放大特定的DNA片段,可看作生物体外的特殊DNA复制。其特点是能将微量的DNA大幅增加,是分子生物学研究和实验的常规方法,PCR实验室广泛应用于生物学各个领域,例如:艾滋病检测、乙型肝炎、禽疫病、癌基因的检测和诊断,DNA指纹、个体识别、亲子鉴定及法医物证,动、植物检疫,动物及其衍生产品检测,动物饲料、化妆品、食品卫生检测,转基因作物与转基因微生物检测等。

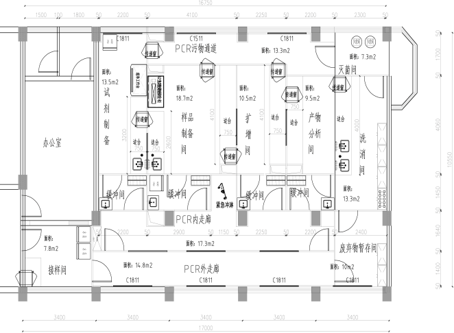
要求:PCR实验室一般面积约60-80m2,分3个区域,试剂储存和准备区、样本处理区和提取及扩增检测区;也有分四个区域的,在三个分区的基础上增加产物分析区;各区在物理空间上完全相互独立,不能有空气直接相同,整个区域有一个缓走廊,每个实验区设有缓冲区。空气流向符合要求:以空气压力递减的方式,实施空气流向控制,扩增前与扩增后区域具有独立通风系统。所用材料必须符合环保相关要求。

PCR实验室配套设备及安装

PCR实验室三个分区设计参考图

PCR实验室四个分区设计参考图

实验室家具

实验室家具

多功能仪器台

全钢实验台

通风柜

钢木实验台

洁净车间

洁净车间

手术室

地址

电话

传真

公司地址:广州市天河区珠吉路1号东源国际大厦605


工厂地址:广州市天河区沐陂东路军区九号大院E5栋


联系电话:020-82044123、82044125

微信

电子邮箱:jiunuo@163.com

官方微信

Copyright 2021 广州九诺实业有限公司 版权所有   广州网站建设:讯度网络      备案号: 粤ICP备13087469号 

  • 电话直呼

    • 020-82312289
    • 13580551228
    • 在线客服 :
  • 官方微信

技术支持: 讯度网络 | 管理登录
seo seo